Woning ID : Lange Zantelweg 19
Verkocht Op aanvraag - 2 onder 1 kap woning
Deze twee onder een kap drive inwoning met en 172 m² grond heeft een mooie, rustige en centrale ligging in het dorp Poortugaal.
In de directe nabijheid zijn diverse kleinschalige voorzieningen, waaronder sportaccommodaties, apotheek, huisartsenpraktijk, bibliotheek, basisschool, kinderopvang, supermarkten en enkele kleine winkeltjes. De uitgebreide voorzieningen van Rhoon en Hoogvliet zijn binnen respectievelijke 5 en 10 autominuten te bereiken.
Poortugaal heeft een goede bereikbaarheid door de ligging nabij de Groene Kruisweg en de A15. Met het openbaar vervoer zoals metro en bus zijn Rotterdam en Spijkenisse prima bereikbaar.
Het bouwjaar van het woonhuis is omstreeks 1963 en is vanaf 2000 grotendeels gemoderniseerd. Het woonhuis heeft een gedegen traditionele bouwconstructie, gedeeltelijk beton vloer, gedeeltelijk hout vloer, stenen buitengevels, een met pannen gedekt zadeldak en de woongedeelte geheel voorzien van merbau kozijnen met dubbele beglazing. De inhoud van het woonhuis bedraagt circa 450 m³
Het woonhuis wordt gekenmerkt door veel lichtinval van de vele raampartijen, eigen parkeerplaats,garage en onderhoudsvriendelijk aangelegde achtertuin.
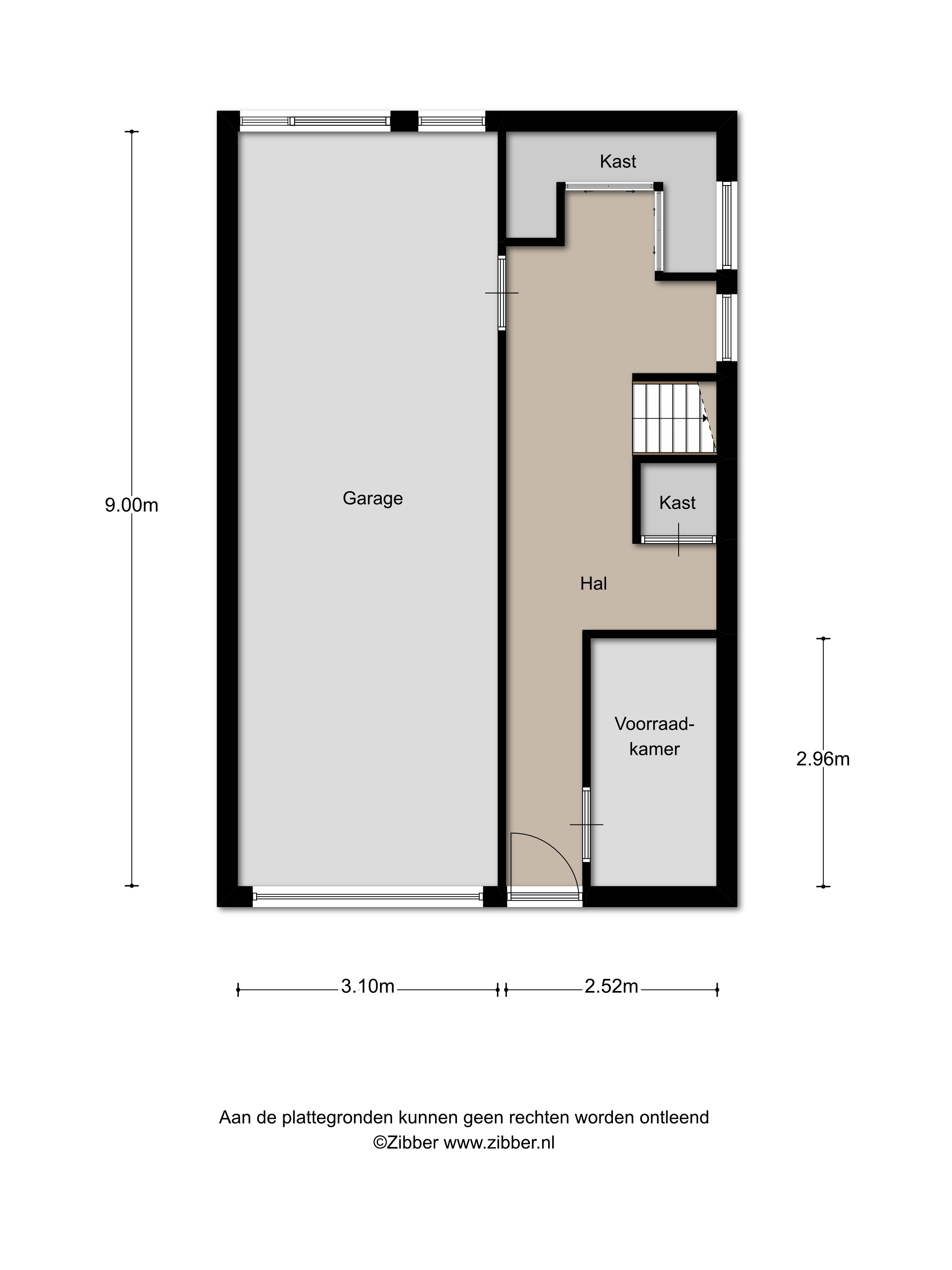
Indeling
De entree aan de voorzijde van het woonhuis naast de garage, biedt toegang tot de hal van het souterrain, de garage en trapopgang naar de eerste verdieping, Het souterrain bevat de inpandige garage, een ruime voorraad kamer, en een aparte wasruimte voor de wasmachine en droger en met een lavet waar een geiser is geplaatst voor het warme water.
In de garage is er voldoende ruimte om eventueel een extra slaapkamer of werkplek te creëren.
De hal/ en wasrumte is voorzien van een tegelvloer, steenstrip en tegel wandafwerking en een verlaagd houten plafond.
Via een afgesloten trap is de ruime hal van de 1 verdieping te bereiken, het woongedeelte.
Deze hal geeft toegang tot het toilet, meterkast met 18 groepen, trapopgang naar de 2 verdieping en de woonkamer. In deze hal bevindt zich ook de voordeur.De hal heeft een plavuizenvloer, behang wandafwerking en een houten plafond.
De toiletruimte is voorzien van een tegelvloer, geheel betegelde, houten plafond, en een staand toilet met wasbakje.
De lichte woonkamer (circa 26 m²) heeft een bamboeparketvloer, behang wandafwerking, gespoten plafond en merbau kozijnen met dubbelglas.
Daarnaast staat de woonkamer in open verbinding met de keuken.
De keuken (circa 12 m²) met uitzicht op de achtertuin heeft een bamboevloer, en gespoten plafond. De keukeninrichting in hoekopstelling is voorzien van een spoelbak met een kraan en een quooker, 5 pits keramische kookplaat, afzuigkap, combi-oven en koelkast. De ruime opstelling van de keukeninrichting zorg voor meer dan voldoende bergruimte.
De keuken heeft een deur naar het balkon, van waar de tuin te bereiken is.
2e verdieping:
Een met linoleum beklede trap is vanuit de hal/ entree de overloop bereikbaar, welke is voorzien van linoleum, behang wandafwerking, systeem plafond.
De overloop biedt toegang tot de badkamer en 3 slaapkamers welke zijn voorzien van vloerbedekking, behang wandafwerking, systeem plafond en merbau kozijnen met dubbelglas. De masterbedroom heeft een inloopkast.
De complete badkamer heeft een tegelvloer, geheel betegelde wandafwerking, systeem plafond, en is ingericht met een tweede toilet, wastafel, douche met massagestralen, en een designradiator.
3e verdieping:
Via een vlizotrap is de bergzolder te bereiken. Hier is ook de cv-ketel Nefit Economie line geplaatst En de mechanisch ventilatie.
Garage
De inpandige garage heeft een oppervlakte van circa 35 m² en is voorzien van betonnen vloer schoonsmetselwerk wanden en betonnen plafond. Een loopdeur in de garage geeft toegang tot de woning.
De garage is toegankelijk middels een kanteldeur. De brede oprit aan de voorzijde van de garage biedt de gelegenheid tot het parkeren van u auto.
Tuin en verdere inrichting
Via de keuken is de tuin te bereiken, de tuin is onderhoudsvriendelijke aangelegd, er is volop beplanting aanwezig en genoeg plaats voor een tuin stel.
Bijzonderheden
- Het woonhuis is goed onderhouden en grotendeels gemoderniseerd;
- Het woonhuis heeft volledig dubbele beglazing;
- In april 2016 buiten volledig geschilderd.
- In mei 2016 quooker vervangen.
- Het riool is in 2014 voor een groot deel vervangen voor PVC
- Het dak is grotendeels vernieuwd in 2013, nieuwe zinken goten, schoorsteen opnieuw gevoegd, lood vervangen.
- Aansluiting op glasvezel mogelijk.
- Er is een garage en oprit aanwezig bij het woonhuis
- Het woonhuis met een perceeloppervlakte van maar 172 m² ligt in het centrum van Poortugaal, in de directe nabijheid van de voorzieningen;
- Om een goede indruk te krijgen van het vrijstaande woonhuis met garage is een bezichtiging aan te bevelen
bekijk hier de interactieve floorplanner van de woning
Kenmerken
- Bouwjaar: 1963
- Perceel oppervlak: 172 m2
- Inhoud: 450 m3
- Isolatie: Dakisolatie
- Onderhoud: Goed onderhouden
- aanvaarding: In overleg





























