Woning ID : Avinguda Emporda
Buitenland €159.000 k.k. - Appartement
Noord- Spanje Sant Pere Pescador
Het appartement is gelegen in het plaatsje Sant Pere Pescador midden in de baai van Rosas. Het strand van Sant Pere Pescador is van fijn zand en is 7 km lang, met natuurlijke duinen. Het plaatsje is zeer centraal gelegen, voor wat betreft het achterland, de Pyreneeen om in de winter te skieen en zomers te wandelen, ook is er een veelvoud van mooie cala’s en toeristenplaatjes. Het ligt vlakbij Figures en Girona waar het vliegveld is en met een afstand van 35 km naar Sant Pere Pescador goed bereikbaar vanuit Nederland.
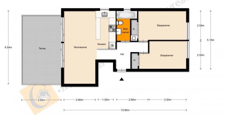
Het appartement ligt aan de rand van de wijk Bon Relax II, het is rustig gelegen op de begane grond met uitzicht op een fruitboomgaard en het zwembad welke bij het complex hoort. Het appartement beschikt over een volledig ingericht moderne keuken met vaatwasser, wasmachine, oven, koelkast, elektrisch koken. De woonkamer is compleet ingericht met TV en DVD-speler (sateliet). vanuit de woonkamer komen we op het terras waar genoeg ruimte is voor de tuinmeubels en te genieten van het buiten leven.
Het appartement heeft 2 slaapkamers en een mooi afgewerkte badkamer, met ligbad wastafel en toilet.
Het appartement heeft in ieder vertrek een afzonderlijk te regelen airconditioning de kozijnen zijn van aluminimum en met dubbel glas de boiler voorziet in warmwater, en er is kabel aanwezig.
Omgeving: museum Dali in Figueres, Picasso in Barcelona, Cadaques, Calella de Parafrugell, Palls, Rosas, Estartit,
Pyreneeen, Nuria, Andorra.
Informatie Sant Pere Pescador
http://nl.santpere.cat/welkom-in-sant-pere.html?categoria=4
http://world-bays.com/bay-of-roses/
ACTIVITEITEN:
Januari: 20: Festa Major – DIADA DE SANT SEBASTIÀ
Februari: CARNAVAL
April: LA CAVALLADA
Juni: WINDSURF WORLD CHAMPIONSHIP / 29: Festa Major – DIADA DE SANT PERE
Juli: Summer Nights in Sant Pere Pescador / MUZIEKFESTIVAL
Augustus: Summer Nights in Sant Pere Pescador / MUZIEKFESTIVAL
September: 11: DIADA NACIONAL DE CATALUNYA
Kenmerken
- Bouwjaar: 2005
- Perceeloppervlakte: 87,50 m2
- Woonoppervlak: 67 m2
- Land: Spanje
- kamers: 3
- Zwembad: gemeenschappelijk












