Woning ID : Sint Dionysiusstraat 31, 4645 HH Putte
Koopwoning €360.000 K.K. - 2 onder 1 kap woning
Plan snel je bezichtiging en laat je verrassen!
Ben je op zoek naar een fijne woning met ruimte, potentie én een goede ligging? Dan is deze twee-onder-een-kapwoning met garage en een royaal perceel van 346 m² absoluut het bekijken waard.
De woning, gebouwd in 1965, is degelijk uitgevoerd met een traditionele bouwstijl. Denk aan een combinatie van betonnen en houten vloeren, stenen gevels en een zadeldak met pannen. De inhoud bedraagt circa 521 m³ en het woonoppervlak ongeveer 103 m² – een mooie basis om jouw woonwensen waar te maken.
________________________________________
Indeling
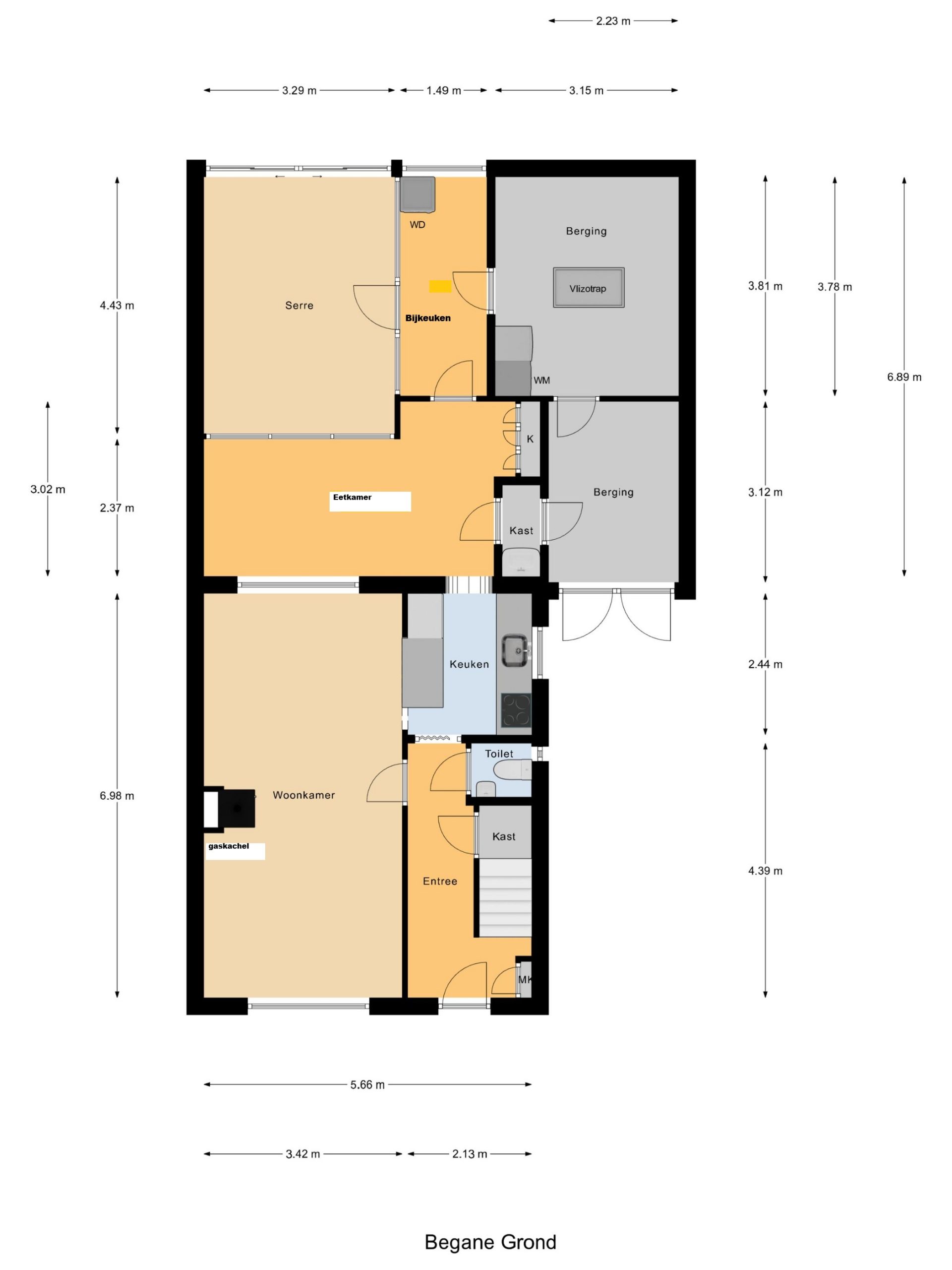
Begane grond
Je komt binnen via de hal aan de voorzijde, waar zich ook de meterkast en het toilet bevinden. Vanuit hier loop je door naar de woonkamer en de trap naar boven.
De woonkamer heeft een warme uitstraling dankzij de parketvloer, de karakteristieke schouw met gashaard en het houten plafond. Aansluitend vind je de halfopen keuken, voorzien van een inductiekookplaat, oven, afzuigkap en koelkast, een praktische indeling én een gezellige eetbar.
De keuken loopt over in de eetkamer, die toegang geeft tot de bijkeuken en de garage/berging. In de bijkeuken vind je de wasmachineaansluiting en toegang tot de serre en tuin.
________________________________________
Eerste verdieping
Op de eerste verdieping zijn drie slaapkamers en een badkamer aanwezig.
Alle slaapkamers zijn voorzien van laminaatvloeren, houten kozijnen met dubbel glas en rolluiken.
De badkamer is volledig betegeld en ingericht met een douchecabine, wastafel en toilet.
________________________________________
Zolder
Via een vaste trap bereik je de ruime zolderverdieping met dakkapel. Met houten kozijnen met enkelglas. Deze verdieping is ingericht als extra slaapkamer en biedt volop mogelijkheden. Het dak is geïsoleerd.
________________________________________
Garage & buitenruimte
De garage met elektrisch poort bevindt zich achter de woning en is voorzien van een betonnen vloer met smeerput, een kanteldeur en een aparte loopdeur. Voor de garage is ruimte om te parkeren op eigen terrein, afgesloten via een poort. Daarnaast is er nog een extra berging aanwezig.
De achtertuin is ruim en verzorgd aangelegd met een terras, en diverse plantenborders. Dankzij de volledige omheining geniet je hier van privacy.
________________________________________
Pluspunten op een rij
• Twee-onder-een-kapwoning met veel potentie
• Ruime garage met smeerput
• Drie slaapkamers + zolderkamer
• Grote zolder met mogelijkheden
• Rolluiken aanwezig
• Ruime tuin met achterom
• Centrale ligging
• Energielabel G
Let op: de woning wordt verwarmd middels een gashaard (geen cv-installatie aanwezig). Daarnaast wordt bij verkoop een ouderdomsclausule opgenomen.
________________________________________
Gelegen in het charmante en groene Putte, biedt deze woning een unieke combinatie van rust, ruimte en bereikbaarheid. Dit geliefde grensdorp staat bekend om zijn bosrijke omgeving en hoogwaardige woonkwaliteit – een plek waar privacy en natuur samenkomen.
In de directe nabijheid vind je uitgestrekte natuurgebieden die zich uitstekend lenen voor wandelen, fietsen en ontspannen in alle rust. Tegelijkertijd beschikt Putte over een compleet voorzieningenniveau met winkels, scholen en sportfaciliteiten binnen handbereik.
Voor wie het beste van twee werelden zoekt, liggen de historische stad Bergen op Zoom en de bruisende metropool Antwerpen op korte afstand. Hierdoor geniet je van een serene woonomgeving zonder concessies te doen aan stedelijke dynamiek en internationale allure.
Putte staat garant voor stijlvol wonen in een groene, grensverleggende omgeving.
Kenmerken
- Bouwjaar: 1965
- Perceel: 346m2
- Onderhoud binnen: Goed
- Onderhoud buiten: Goed
- Oplevering: In overleg
- Oriëntatie tuin: Zuid-West











































