Woning ID : Schoolstraat 12, 4645 DA Putte
Koopwoning Op aanvraag - Vrijstaande woning
Ideaal gelegen, zeer goed onderhouden vrijstaande woning met grote tuin in een rustige bosrijke omgeving. De ligging aan een kindvriendelijke weg en een uiterst rustig pleintje, op enkele fietsminuten van het dorpscentrum.
In het dorp zijn uitgebreide voorzieningen aanwezig waaronder een basisschool, kinderopvang, sportgelegenheden, huisartsenpost, fysiotherapiepraktijk en een divers assortiment aan winkels. Putte is als grensdorp vooral bekend en geliefd vanwege zijn ruime winkelopeningstijden: de winkels zijn het hele jaar door elke zondag geopend. De natuur rondom het dorp is echt bijzonder mooi: u kunt heerlijk wandelen en fietsen in het aangrenzende Moretusbos of in het prachtige natuurgebied de Kalmthoutse Heide op de Nederlands/Belgische grens (binnen enkele fietsminuten bereikbaar).
WONING
Het oorspronkelijke bouwjaar van het woonhuis is 1990. Het woonhuis heeft een gedegen traditionele bouwconstructie, gedeeltelijk betonnen vloeren, gedeeltelijk houten vloeren, gedeeltelijk stenen buitengevels, gedeeltelijk keralit gevelbekleding, een met pannen gedekt zadeldak en geheel voorzien van houten kozijnen met dubbele beglazing. De garage heeft een platdak met bitumineuze dakbedekking. Het woonoppervlak bedraagt ongeveer 129 m². Dit is exclusief de garage. De inhoud is ongeveer 702 m³ en staat op een ruim perceel van 355 m².
INDELING
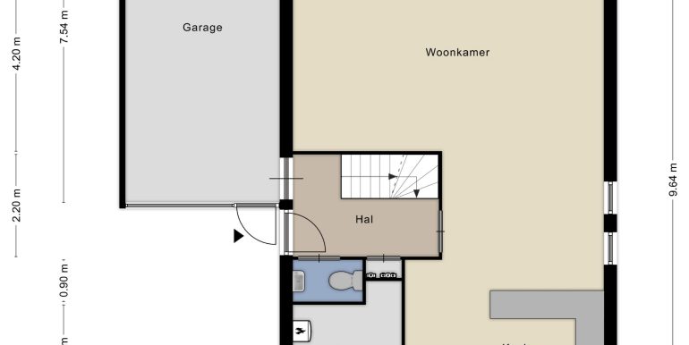
BEGANE GROND
Entree/hal:
De ruime entree biedt toegang tot de woonkamer, toilet en meterkast met voldoende groepen. Via een open trappen bereikt u de verdieping.
Woonkamer:
De lichte woonkamer heeft strakke wandafwerking en een gespoten plafond. Er ligt een donkere laminaat vloer. Over de gehele achterzijde is een houten kozijn met een loopdeur naar de tuin, voorzien van dubbelglas.
De keuken heeft een uitgebreide hoekopstelling met veel bergruimte en diverse inbouwapparatuur, bestaande uit: een elektrische kookplaat met afzuigkap, oven, koelkast. Dankzij het grote raam in de keuken heeft u een mooi uitzicht op de voortuin.
Naast de keuken bevindt zich de bijkeuken. Hier bevinden zich de aansluitingen voor de vaatwasser, wasmachine en droger.
De toiletruimte is voorzien van een tegelvloer, met toilet en fonteintje, gedeeltelijk betegelde wanden en een gespoten plafond.
Souterrain:
Het souterrain van bijna 70 m² mag best verrassend genoemd worden. De huidige eigenaren gebruiken deze ruimte niet. Om deze ruimte bruikbaar te maken is een trap plaatsen en verder afwerken noodzakelijk. Deze ruimte zou dan prima geschikt kunnen zijn als kantoor-, praktijk-, hobby-, fitnessruimte, thuisbioscoop of wijnkelder.
VERDIEPING
Via een hardhouten open trap in de hal bereikt u de overloop van de verdieping. De indeling van de verdieping zal u direct aanspreken: drie ruime slaapkamers en een afzonderlijke badkamer.
Slaapkamers:
Slaapkamer 1 en 2 aan de voorzijde van de woning hebben behangwandafwerking en een lichte vloerbedekking, en houten kozijnen met dubbelglas.
De derde slaapkamer ligt aan de achterzijde van de woning en is voorzien van behang wandafwerking en ook hier lichte vloerbedekking, en houten kozijnen met dubbelglas.
Badkamer:
De ruime badkamer is geheel betegeld en praktisch ingedeeld: er is een douche, ligbad, wastafel met spiegel en toilet.
Zolder:
De zolder is bereikbaar via vlizotrap op de overloop. De zolder is over de gehele verdieping beloopbaar.
OVERIGE RUIMTES
Garage:
De inpandige garage biedt ruimte voor één auto en heeft een aluminium kanteldeur. De garage beschikt daarnaast over voldoende ruimte voor bijvoorbeeld meerdere fietsen, kasten en/of stellingen. De garage is vanaf de straat bereikbaar via een oprit die plaats biedt aan twee auto’s.
De tuin:
De tuin rondom past perfect bij de woning en de bosrijke omgeving.
De voortuin is heeft gevarieerde beplanting. De tuin is aan de straatzijde afgeschermd door een hek met toegangspoort.
De achtertuin biedt volop privacy. Veel volwassen beplanting met hoge groenblijvende struiken. De achtertuin heeft een ruim terras met een elektrische zonnewering.,
, gazon en borders met een grote variatie aan planten en lage bomen.
BEREIKBAARHEID
Vanuit Putte bent u snel in Antwerpen (20 km) met zijn leuke buurten, bezienswaardigheden, culturele mogelijkheden, bijzondere winkelstraten en haven. Ook de vestingstad Bergen op Zoom is dichtbij (20 km). Wanneer u regelmatig vliegt is Zaventem, de luchthaven bij Brussel, goed bereikbaar (ook per trein vanuit de plaats Heide, Kalmthout, afstand ongeveer 6 km). Rotterdam is via de snelweg A4 binnen afzienbare tijd te bereiken (ongeveer 60 autominuten). Putte heeft uitstekende busverbindingen met de omliggende plaatsen.
BIJZONDERHEDEN IN HET KORT
• Fantastisch wonen, eventueel in combinatie met praktijk/werk/atelier
• Ruime tuin met volwassen beplanting en veel privacy
• Heerlijke openkeuken
• Een groot souterrain dat veel mogelijkheden biedt
• Inpandige garage
• Airco in de slaapkamer uit 2020
• Nieuwe keralit gevelbekleding uit 2021
• Zeer goed onderhouden
• Elektrische zonnewering
• Uitstekend voorzieningenniveau in de omgeving
Om een goede indruk te krijgen van deze ruime woning is een bezichtiging aan te bevelen. Wij nodigen u graag uit om deze woning van nabij te bekijken. U zult versteld staan van de ruimte.
NB:
Eventuele maatvoeringen t.a.v. Plattegronden, inhouds- en oppervlaktematen zijn bij benadering vastgesteld. Koper is in gelegenheid gesteld om deze maten op of na te meten en vrijwaart verkoper en diens makelaar van elke aansprakelijkheid wanneer hier toch afwijkingen in zouden voorkomen. De Meetinstructie is gebaseerd op de NEN2580. De Meetinstructie is bedoeld om een meer eenduidige manier van meten toe te passen voor het geven van een indicatie van de gebruiksoppervlakte. De Meetinstructie sluit verschillen in meetuitkomsten niet volledig uit, door bijvoorbeeld interpretatieverschillen, afrondingen of beperkingen bij het uitvoeren van de meting.
Deze informatie is door ons met de nodige zorgvuldigheid samengesteld. Onzerzijds wordt echter geen enkele aansprakelijkheid aanvaard voor enige onvolledigheid, onjuistheid of anderszins, dan wel de gevolgen daarvan. Alle opgegeven maten en oppervlakten zijn als indicatief te beschouwen.
Kenmerken
- Bouwjaar: 1990
- Perceeloppervlak: 355 m²
- Inhoud: 702 m³
- Aanvaarding : In overleg
- CV-Ketel: Vaillant 2015
- Oriëntatie tuin: Zuid-west
- Onderhoud binnen: Goed
- Onderhoud buiten: Goed


































