Woning ID : Pastoor Wolterstraat 17, 4645 EM te Putte
Koopwoning €415.000 K.K. - Vrijstaande woning
Vrijstaande woning in Putte
Deze vrijstaande woning biedt met vier volwaardige slaapkamers volop ruimte voor het hele gezin. Dankzij de badkamer op de begane grond en de douchekamer op de eerste verdieping is de indeling bijzonder praktisch – ideaal voor gezinnen met kinderen.
Indeling
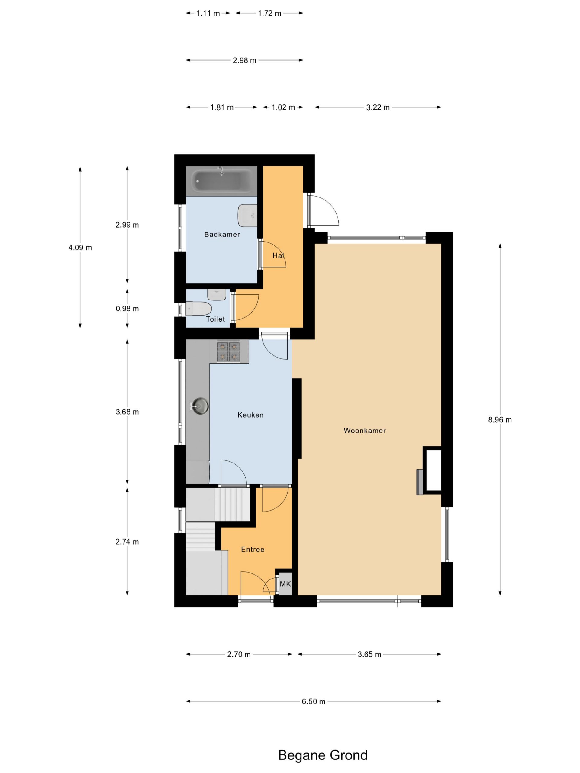
Begane grond
Via de entree met trap naar de verdieping en meterkast bereik je de royale keuken, die in open verbinding staat met de lichte woonkamer. Grote raampartijen zorgen voor een fijne natuurlijke lichtinval. De massieve houten vloer in combinatie met de gestucte wandafwerking geeft de leefruimte een warme, moderne uitstraling. De open haard maakt het geheel compleet.
De halfopen keuken is praktisch ingedeeld en voorzien van diverse inbouwapparatuur, waaronder een gaskookplaat met oven, koelkast met vriesvak en een afzuigkap. Het werkblad met rvs-spoelbak vormt een functioneel geheel. Achter de keuken bevindt zich een tweede hal met toilet en een ruime badkamer, In deze ruimte is tevens plek voor de wasmachine en droger. Vanuit deze hal loop je zo de verzorgde aangelegde achtertuin in.
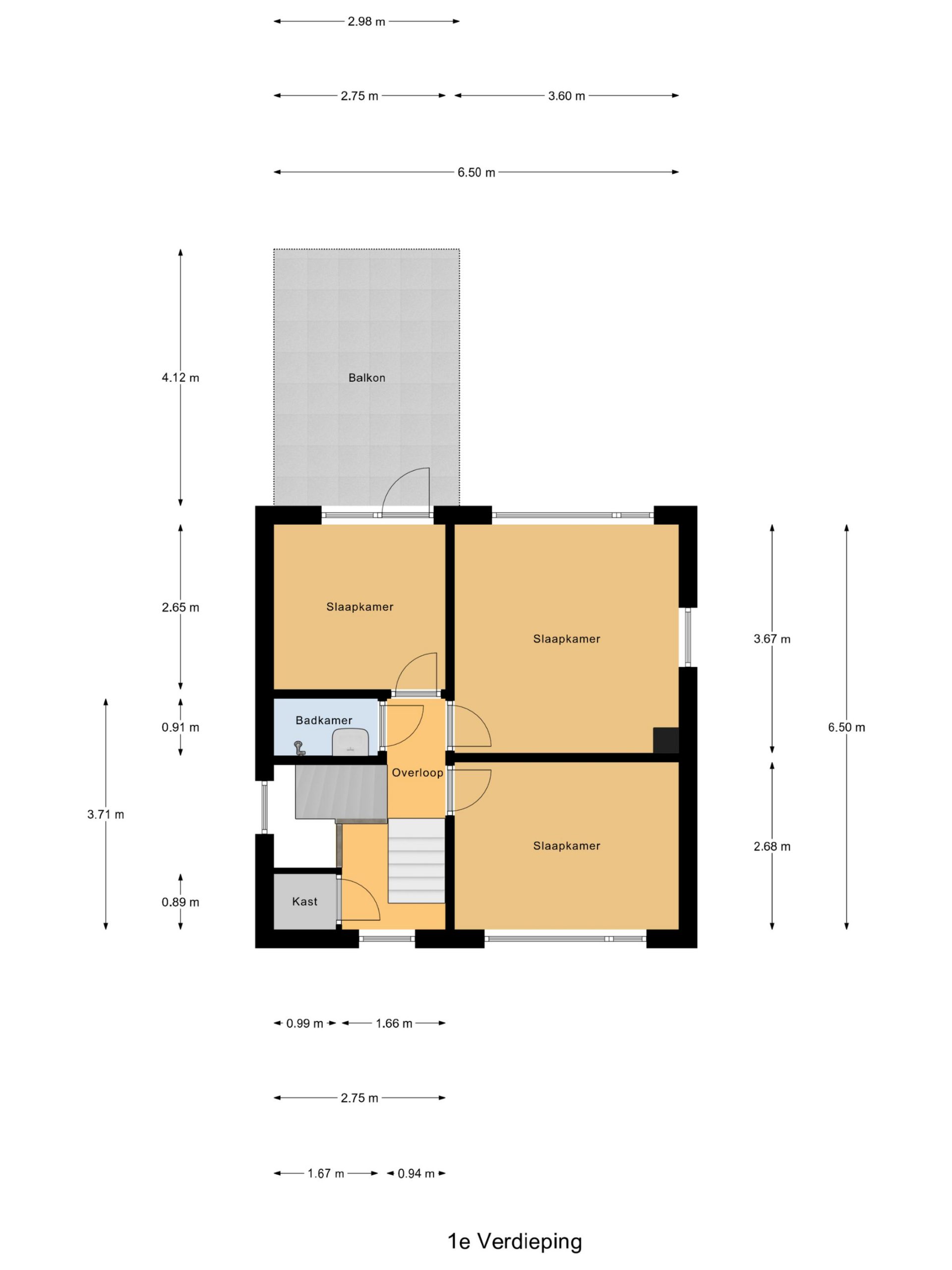
Eerste verdieping
Op de eerste verdieping bevinden zich drie slaapkamers, allen voorzien van gestucte wanden, nette vloerafwerking en enkele beglazing. De ramen op het zuidwesten hebben ook rolluiken. De separate douchekamer beschikt over een douche en een wastafel.
Tweede verdieping
Een vaste trap leidt naar de tweede verdieping, waar een royale vierde slaapkamer is gerealiseerd, voorzien van een dakraam Op deze verdieping bevindt zich ook de cv-installatie.
Garage en tuin
Naast de woning staat een vrijstaande stenen berging met garage voorzien sectionaaldeur. De lange oprit biedt plaats aan meerdere auto’s. De achtertuin is een heerlijke plek om te genieten: zonnig gelegen op het zuidwesten en ingericht met bestrating en groene borders.
________________________________________
Bijzonderheden
• Goed onderhouden vrijstaande woning
• Vier volwaardige slaapkamers
• Gedeeltelijk dubbele beglazing en voorzien van rolluiken
• Energielabel C
• Zonnige achtertuin op het zuidwesten
• Vrijstaande garage met berging en ruime oprit
• Rustige ligging nabij diverse voorzieningen
De woning ligt in een rustige straat in Putte, met alle dagelijkse voorzieningen binnen handbereik: winkels, scholen, kinderopvang, sportfaciliteiten en medische zorg. Putte staat bekend om de ruime winkelopeningstijden – de winkels zijn het hele jaar door elke zondag geopend. Voor natuurliefhebbers liggen het Moretusbos en de Kalmthoutse Heide om de hoek, ideaal voor wandel- en fietstochten. Bovendien ben je binnen 20 minuten in hartje Antwerpen met zijn gezellige buurten en uitgebreide winkelaanbod.
Kenmerken
- Bouwjaar: 1940












































