Woning ID : Anjer 30, Hoogerheide
Verkocht Op aanvraag - Eindwoning
STARTERSWONING
Deze hoekwoning is gelegen in een rustige woonwijk en heeft een inpandige berging. De woning is gelegen nabij het dorpscentrum van Hoogerheide, openbaar vervoer en de uitvalswegen A4 en A58 richting Antwerpen, Rotterdam en Zeeland op 3 minuten autorijden
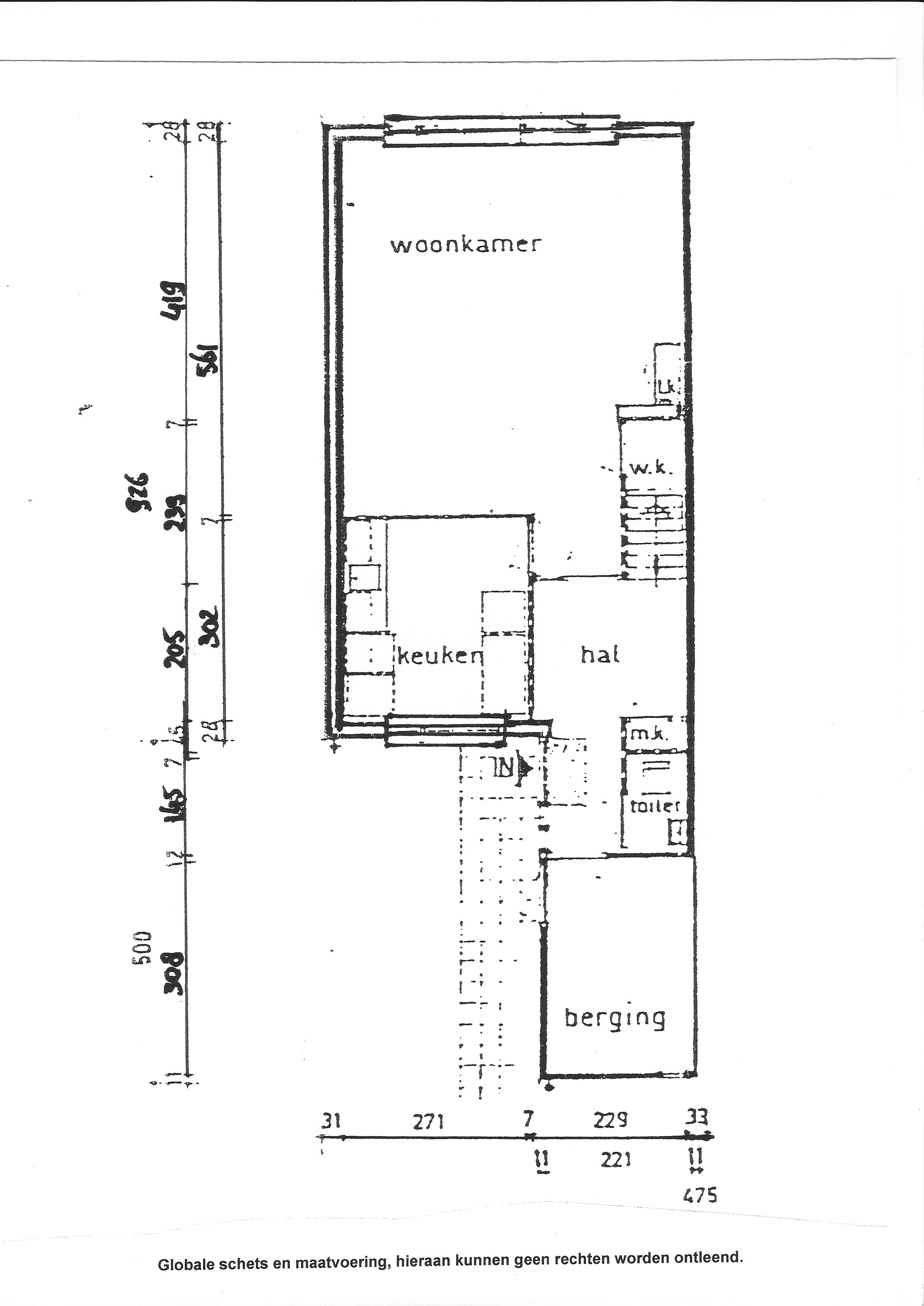
Begane grond:
De entree/ hal geeft toegang tot de meterkast, berging, toiletruimte en de woonkamer. De betegelde toiletruimte is voorzien van een staand toilet en fonteintje. De keuken is aan de voorzijde van de woning voorzien van een eenvoudige inrichting zonder apparatuur. De woonkamer heeft een betonvloer, en gestucte wanden. Middels een openslaande tuindeur is er vanuit de woonkamer toegang tot de tuin. De tuin is gelegen op het zuidwesten, en is te bereiken middels een vrije achterom. De kozijnen zijn van hardhout met dubbelglas. De inpandige stenenberging heeft aparte deur naar de voortuin, aansluiting voor de wasmachine en droger zijn aanwezig in de berging.
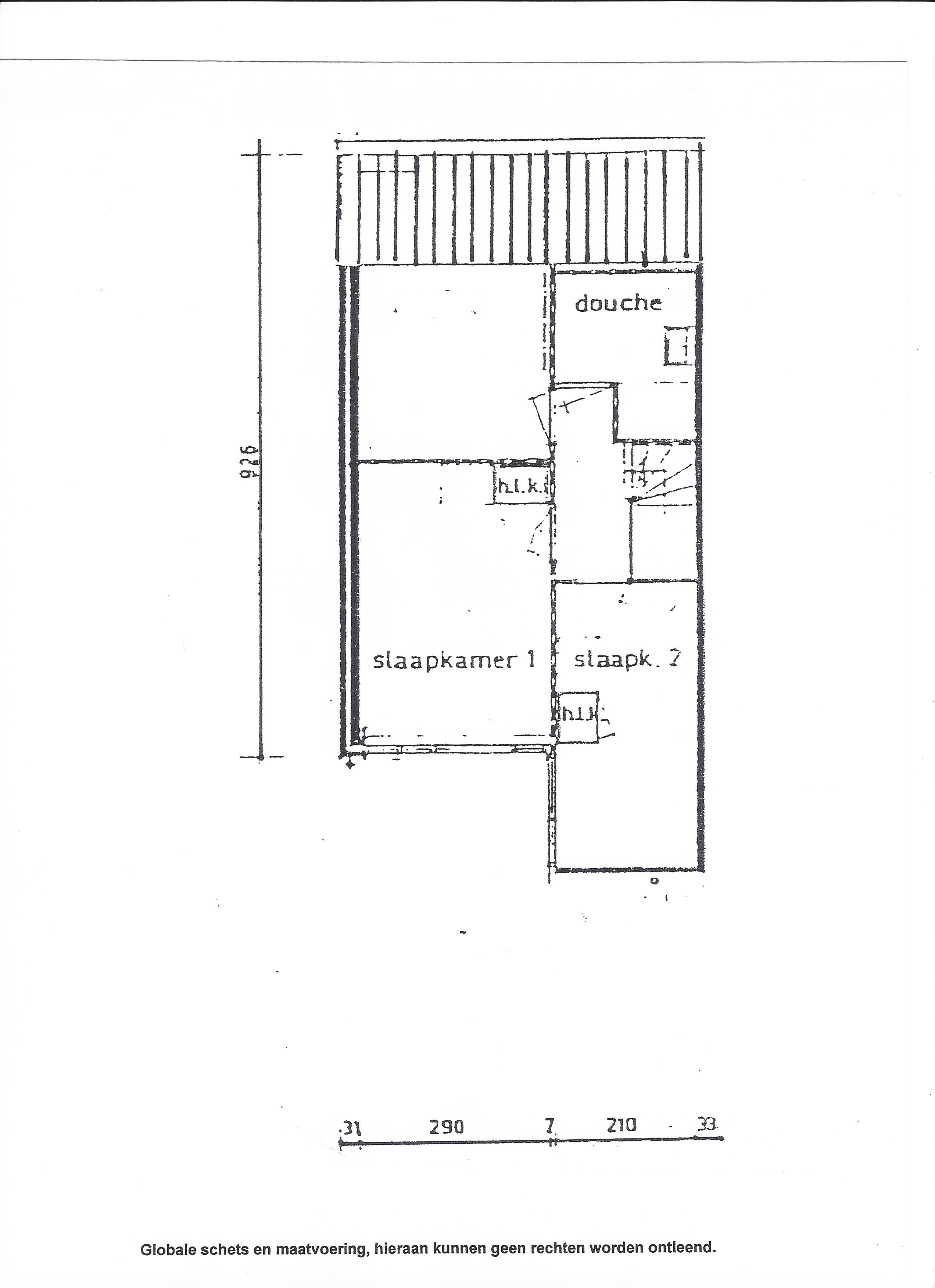
1e verdieping:
Vanuit hal is er middels een open trapopgang de overloop van de 1e verdieping te bereiken. Vanuit de overloop is er toegang tot 3 ruime slaapkamers. De moderne badkamer is geheel betegeld, heeft een wastafel met mooie spiegel en een douche. De kozijnen aan de voorzijde zijn van hardhout en enkelglas ( het enkelglas wordt nog vervangen voor dubbelglas). De slaapkamer en badkamer aan de achterzijde zijn voorzien van kunststofkozijnen met dubbelglas.
2e verdieping:
Middels een vlizotrap is de zolderverdieping te bereiken, hier is de cv-ketel geplaatst, verder is er voldoende bergruimte.
Algemeen:
Bouwjaar 1976, inhoud ca. 300m3, woonoppervlakte ca. 110m2, perceeloppervlakte ca.225m2. Onderhoudsstaat is zowel binnen als buiten goed. De woning is gedeeltelijk voorzien van hardhouten en kunststof kozijnen met dubbelglas. De wanden en plafonds zijn strak gestukt. Deze hoekwoning is gelegen aan een rustig straat. School- en winkelvoorzieningen bevinden zich beide op loopafstand.
Kenmerken
- Bouwjaar: 1976
- Perceeloppervlakte: 225m2
- Inhoud: 300 m3
- Woonoppervlakte: 110 m2
- Binnen waardering: Goed
- Buiten waardering: goed
- Berging: Inpandig



